房源概况
龙华区住建局面向重点企业定向配租1130套保租房,包括安居尚龙苑、安居瑞龙苑(人才住房)、鸿荣源北站商业中心、华章新筑、华馨雅苑(无学位)5个项目,2025年8月2日-8月8日17:30(共7天)期间申请认租,房源地址、户型面积、租金价格等详情如下:
(点击可查看房源信息表大图,户型图见下文)
2025年第二批龙华重点企业保租房信息表↓

注:1.以上住房面积为建筑面积,仅供企业申报时参考,最终单套建筑面积以地籍测绘部门出具的测绘报告为准;
2.华馨雅苑40㎡以下可一人家庭申请,40㎡及以上需两人及以上家庭申请,请在《保障性租赁住房申请表》中按需申报相应面积;
3.华章新筑部分房源为正在腾退房源,预计8月底可办理入住,最终房源入住以下达房源时间为准;
4.安居尚龙苑、华章新筑后续运营管理由深圳市龙华安居有限公司或其委托的运营管理单位负责,签约入住等事项请咨询相关公司;安居瑞龙苑后续运营管理由深圳市安居集团有限公司或其委托的运营管理单位负责,签约入住等事项请咨询相关公司。
5.华馨雅苑的预计交付时间仅供参考,最终交付时间可能会提前或者延后,对预计交付时间准确性要求比较高的承租人要谨慎选择,预留充足的住房衔接时间,并且不得以预计交付时间向龙华区住建局提出诉求。
6.单套住房的具体租金,在租金标准基础上,考虑楼层、朝向等因素修正确定,以租赁合同明确的租金单价为准。提交认租申请后,即视为了解并认可上述租金标准。
户型图(仅供参考)
安居瑞龙苑
安居瑞龙苑1栋B座、1栋C座户型分布

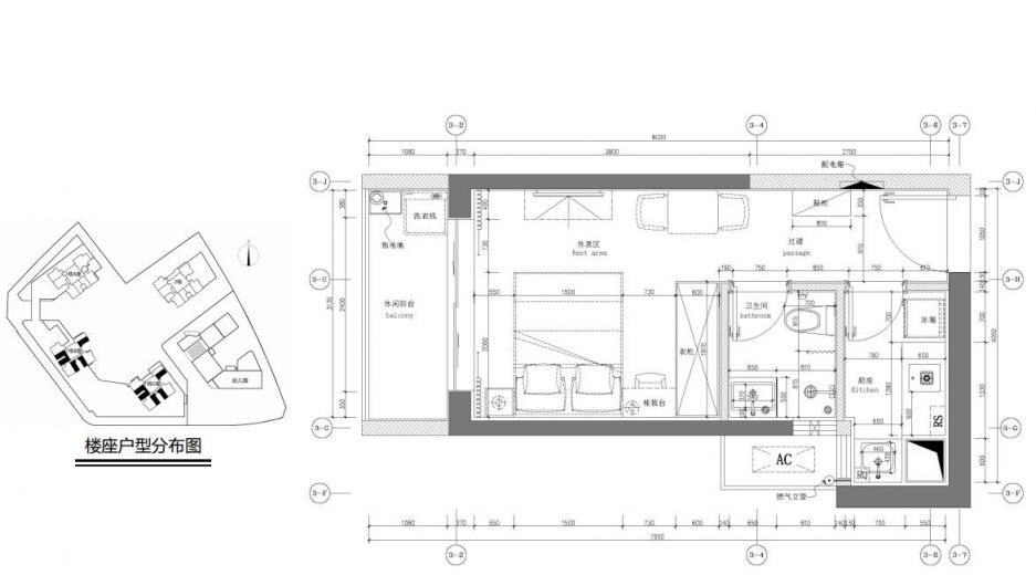
安居瑞龙苑项目约35㎡户型1

安居瑞龙苑项目约35㎡户型2

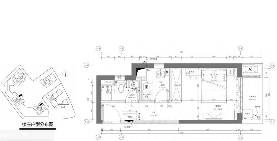
安居瑞龙苑项目约70㎡户型

安居尚龙苑
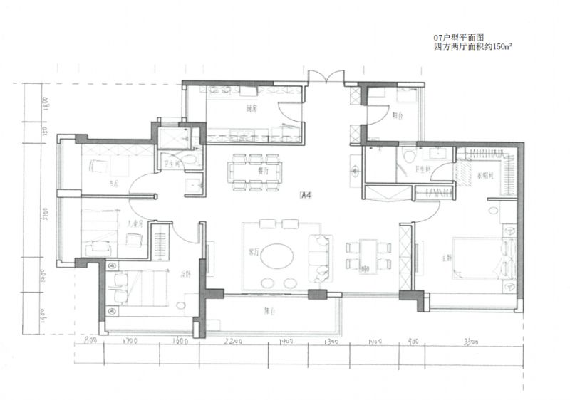
安居尚龙苑150㎡户型图参考

鸿荣源北站商业中心
鸿荣源北站商业中心总图

鸿荣源北站商业中心约35㎡户型图

华章新筑
华章新筑1A、1B、1C、2、3栋平面图有栋号

华章新筑A-1约35㎡户型

华章新筑A-2约35㎡户型

华章新筑A-3约35㎡户型

华章新筑建筑平面有房号

华章新筑约70㎡户型

华馨雅苑
?










温馨提示:微信搜索公众号【深圳本地宝】,关注后在对话框回复【龙华保租房】获取深圳龙华区个人保租房+单位保租房最新房源消息、房源地址和周边配套、租金价格、户型平面图、申请入口及条件等内容